Trilocale in vendita

Milano, Via Gianfranco Zuretti - Cascina Dei Pomi
€ 349.000
Prezzo aggiornato
3 locali 3 locali
71 Mq 71 Mq
1 bagno 1 bagno

Trilocale in vendita

Milano, Via Gianfranco Zuretti - Cascina Dei Pomi

Descrizione annuncio

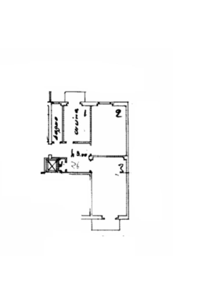
Tecnocasa propone in vendita un luminoso trilocale di 71 mq, situato al secondo piano con ascensore in Via Zuretti, in una zona strategica e ben servita di Milano.

L’ingresso si apre su un accogliente corridoio che accompagna alla scoperta degli ambienti della casa: un bagno finestrato completo di box doccia, una cucina abitabile con balcone, ideale per momenti di convivialità, una camera da letto luminosa e una seconda camera anch’essa dotata di balcone privato, perfetta come stanza per ospiti o studio.

La soluzione è completata da una cantina di pertinenza, infissi in doppio vetro PVC e riscaldamento centralizzato, che garantisce comfort e praticità in ogni stagione.

La posizione è particolarmente vantaggiosa: a pochi minuti a piedi si raggiungono le stazioni di Milano Centrale e Greco Pirelli, oltre a numerose fermate di autobus e tram che collegano comodamente con ogni zona della città. Nelle immediate vicinanze si trovano negozi, supermercati, scuole e servizi di ogni genere, rendendo l’abitazione ideale sia per famiglie che per chi desidera vivere in un contesto urbano dinamico ma ben organizzato.

Un’abitazione che unisce funzionalità, comfort e posizione, pronta ad accogliere chi cerca la comodità della città senza rinunciare alla tranquillità di un ambiente curato e ben distribuito.

Un'opportunità unica per vivere in un ambiente esclusivo, in uno dei quartieri più ricercati di Milano.

Se stai cercando la casa perfetta per te e la tua famiglia, questa è l'opportunità che non puoi lasciarti sfuggire! Contattaci al seguente numero 02-35987157 oppure inviaci un'email a mict8 un nostro agente sarà pronto a rispondere alle vostre domande con professionalità e cortesia.

Ogni agenzia ha un proprio titolare ed è autonoma.

Le immagini e le informazioni NON costituiscono elemento contrattuale.

Mostra tutto

Nelle vicinanze

Trasporto pubblico Trasporto pubblico
Rovereto
Rovereto
780 m
Pasteur
Pasteur
870 m
Milano Centrale
Milano Centrale
990 m
Milano Greco Pirelli
Milano Greco Pirelli
2,0 Km
Greco Rovereto
Greco Rovereto
520 m
Ricariche auto elettriche Ricariche auto elettriche
BeCharge Milano S. Rafael
480 m
A2A Isola Digitale Stazione Centrale
1,2 Km
A2A Isola Digitale Piazza Argentina
1,3 Km
A2A Via Torquato Taramelli
1,5 Km
A2A Palazzo della Regione
1,5 Km
Scuole Scuole
Scuola Primaria Venini
630 m
Scuola Secondaria di Primo Grado Roberto Franceschi
640 m
Scuola Materna Via Pallanza 26
840 m
Scuola primaria Gianni Rodari
840 m
Scuola Secondaria di Primo Grado Teodoro Ciresola
870 m
Farmacia Farmacia
Farmacia
210 m
A.F.M. COMUNALE N.32
460 m
Farmacia Dottor Barni
510 m
Comina
510 m
Macchi
530 m
Ospedali Ospedali
Istituto Villa Marelli
1,2 Km
Humanitas San Pio X
1,6 Km
Polo riabilitativo Istituto Gaetano Pini
1,6 Km
Istituto Clinico Città Studi
1,7 Km
San Raffaele - Turro
1,7 Km
Supermercati Supermercati
Carrefour Expres
300 m
MD Market
520 m
Tigros
530 m
U2
550 m
Simply Market
690 m
Negozi Negozi
Panetteria-pasticceria Romano
320 m
L'antico forno 2
530 m
Carrefour Express
580 m
Nadia Mini Market
590 m
City Mini Market
610 m
Bar Bar
Bar De Marchi
300 m
Tunnel Club
360 m
C&C Bar
520 m
Ghe Pensi Mi
620 m
Baia Disco Club
640 m
Ristoranti Ristoranti
Dulcis in fundo
40 m
Ristorante Pizzeria La Caletta
160 m
Mercato del Pesce
180 m
Fei Yun Ge
180 m
SushiYo
330 m
Mostra tutto

Caratteristiche

Rif.:
61137014
Piano:
2 di 6 con ascensore (Piano basso)
Balconi:
2
Camere da letto:
2
Arredamento:
Assente
Condizionamento:
Centralizzato
Mostra tutto
Prezzo Prezzo
€ 349.000
Rata mutuo Rata mutuo
€ 1.646 / mese
Spese annue Spese annue
€ 1.800
Proponi il tuo prezzoProponi il tuo prezzo

Classe Energetica

G
G
G
G
G
G
G
G
G
EP globale non rinnovabile:
350.00 kW h/m² anno
EP globale rinnovabile:
350.00 kW h/m² anno
Anno di costruzione:
2000
Riscaldamento:
Centralizzato
Tipo impianto:
A radiatori
Tipo alimentazione:
Metano

Prezzo ridotto di €1 (5%%)

Ti interessa visionare l'immobile?

Fissa un appuntamento  Fissa un appuntamento

Richiedi informazioni

Clicca su Leggi per aprire l'informativa
* Questi campi sono obbligatori

Calcola il tuo mutuo

Semplice e senza impegno
Anticipo

( % )
Mutuo

( % )

pochi semplici passi

inserisci i tuoi dati
Questionario completato
Grazie per aver richiesto un appuntamento senza impegno con un nostro Consulente del Credito e Assicurativo.

Hai inserito correttamente tutti i dati necessari e a breve riceverai una e-mail con un link da convalidare per inviare i tuoi dati.
Affiliato
Stima Immobiliare Srl
Via Pigello Portinari, 1 20123 Milano (MI)

Il nostro staff


  • Claudia Ciavattella
    Responsabile

  • Nicola Emma
    Affiliato

  • Marco Pisani
    Responsabile

  • Giulia Vicino
    Coordinatrice

  • Riccardo Viglietti
    Responsabile
Via Pigello Portinari, 1 20123 Milano (MI)
Zona: Portinari
Mostra su mappa
Affiliato
Stima Immobiliare Srl
Via Pigello Portinari, 1 20123 Milano (MI)

2025 Tecnocasa Franchising S.p.A. - P. IVA 08365160152 - Via Monte Bianco 60/A 20089 Rozzano (MI). Ogni agenzia ha un proprio titolare ed è autonoma. Privacy policy | Policy utilizzo | Cookie policy